- Tout
- AMO / Programmation
- PROJET DE RENOUVELLEMENT URBAIN / NPNRU
- Résilience
- MOE Urbaine
COMMUNE DE BEAUPREAU EN MAUGES (49)
ETUDE DE PROGRAMMATION ET MISSION D'AMO COMPLETE _ CONCEPTION DU SECTEUR DE LA LOGE
2018 – 2020 / MO : Mairie de Beaupréau
ELEMENTS DE MISSION
_ Etude de programmation, définition de plusieurs scenarii pour le secteur de la Loge – pôle
culturel et administratif de l'EPCI
_ Chiffrage, Montage et planning d'intervention (études et travaux)
_ Lancement des marchés de maîtrise d'oeuvre (espaces publics, médiathèque et autres
équipements nouveaux,...) dont rédaction des cahiers des charges et assistance
administrative et juridique, conseils financiers stratégiques
_ Coordination des études et des travaux
ENJEUX & PARTICULARITES
Nous avons restructuré un espace public stratégique à l'échelle de l'EPCI vers une véritable
plateforme culturelle animée et très smart en termes de gestion et pratiques. Au fil des
études et des rencontres le niveau d'ambition du projet n'a fait qu'augmenter vers la
définition d'un site élargi qui permettra d'accueillir un projet de rayonnement culturel
départemental, en offrant aux habitants de la commune une véritable place publique atypique,
lieu convergent de pratiques multiples.
COMMUNE DE COGNAC (16)
ETUDE PROGRAMMATIQUE ET DE CONCEPTION SUR LE SITE DE L'ANCIEN HOPITAL
2018 – 2020 / MO : Mairie de Cognac
ELEMENTS DE MISSION
_ Diagnostic urbain transversal et diagnostic physique du secteur de projet (intégrant
l'ancien hôpital, l'EHPAD, du terrain libre le long de la voie ferrée,..)
_ Etude de programmation et pré-opérationnelle à l'échelle du site : définition des
entités
urbaines nouvelles et qualification des typologies nouvelles de logements et
d'activités.
Définition du projet de réhabilitation de l'ancien hôpital en rapport avec le quartier
nouveau
_ Chiffrage et montage du projet urbain, définition de la stratégie mobilité et
énergie
_ Conception général du secteur et des espaces publics
_ Réalisation du dossier Loi Sur L'Eau, Permis d'Aménager, et AVP au titre de la loi MOP
ENJEUX & PARTICULARITES
Le site de l'ancien hôpital de Cognac présente un formidable potentiel de développement
pour
la ville, sous la condition que cette croissance soit planifiée/maîtrisée. Nous
programmons
donc ce secteur de plusieurs hectares avec des ambitions fortes en termes d'habitat et
de
développement économique. Notre projet met en scène l'ancien hôpital qui présente un
très
fort intérêt architectural et que nous proposons de réhabiliter pour porter des
fonctions
nouvelles synergiques avec le quartier. Le bâtiment patrimonial s'agrémente d'un parc,
terrain de jeux et d'échanges des associations et des futurs habitants du quartier.
C'est
aussi un jardin naturel d'infiltration qui accueille le midi les salariés de la zone, le
soir des évènements divers.
Le projet dans sa globalité présente des enjeux très fort aux niveaux énergétiques (dont
matériaux et approche climat) et en termes de gestion pluviale.
COMMUNE DE FOUGERES (35)
ETUDE DE PROGRAMMATION & OPERATIONNELLE _ PROGRAMME D'ACTION COEUR DE VILLE
2018 – 2019 / MO : Mairie de Fougères
ELEMENTS DE MISSION
_ Etablir un diagnostic transversal concluant sur les freins à l'attractivité/croissance et
définition des enjeux
_ Etude de programmation générale visant la redynamisation du centre-ville, définition de
plusieurs scenarii échelles ville et quartiers
_ Définition de programmes sectoriels, chiffrage et montage des projets avec les
partenaires
_ Ateliers de concertation
_ Montage du dossier « Coeur de ville »
ENJEUX & PARTICULARITES
Dans le cadre du programme d'action coeur de ville, la commune a souhaité bénéficier d'une
étude de programmation générale visant prioritairement la revitalisation du centre par la
dynamique commerciale et la valorisation patrimoniale. L'étude nous a amené à la définition
de multiples projets urbains, la création de nouveaux moyens de se déplacer (touristiques et
fonctionnels), la qualification et l'animation des espaces publics, la création d'une base
de loisirs et sportive, la réhabilitation de bâtiments patrimoniaux (avec ABF) pour
permettre de créer des fonctions nouvelles très attractives et en rapport avec les attentes
des habitants. Un coeur de ville renouvelé.
COMMUNE DE FOUGERES (35)
REHABILIATION ET MISE EN VALEUR DE LA SALLE DE L'AUDITOIRE (DES SENECHAUX) / AMENAGEMENT DE LA PLACE JEAN GUÉHENNO
2018 – 2019 / MO : Mairie de Fougères
ELEMENTS DE MISSION
_ Etablir un diagnostic patrimonial de la salle des Sénéchaux
_ Programmation spatiale et fonctionnelle de la salle des Sénéchaux : Quel degrés
d'intervention selon la fonction apportée ?
_ Conception architecturale 3 scenarii (Esquisses) et aménagement des espaces publics
ENJEUX & PARTICULARITES
En plein secteur patrimonial du Coeur de Ville, sur l'espace de rassemblement historique
(anciennes halles) la salle des Sénéchaux -enterrées- est aujourd'hui imperceptible de
l'espace public et sans fonction ni usages. L'enjeu soulevé lors de notre étude de
programmation générale est de faire valoir ce patrimoine en l'ouvrant sur la principale rue
commerçante de Fougères en imaginant des projets de reconversion fonctionnelle selon
différents degrés d'interventions, mais toujours en valorisant le patrimoine.
Le résultat : La construction d'un espace attractif unique, chargé d'histoire et portant des
vocations multiples (théâtre, brasserie et salle d'exposition mutable) en plein coeur de
ville, point de relance de la dynamique commerciale.
COMMUNE DE LIBOURNE (33)
ETUDE DE PROGRAMMATION ET DE CONCEPTION POUR LA REHABILITATION DU SITE DE LA PISCINE MUNICIPALE
2019 – 2020 / MO : Mairie de Libourne
ELEMENTS DE MISSION
_ Diagnostic technique de la piscine municipale
_ Etude de définition de 3 scenarii de reconversion pour le site de la piscine
municipale
_ Chiffrage et montage des différents projets, détermination des partenaires établis et
fléchés
ENJEUX & PARTICULARITES
Située au contact du centre-ville la piscine municipale devenue vétuste va fermer ses portes
et ainsi libérer de sa fonction un grand terrain au contact de grandes surfaces
commerciales. Nous avons proposé 3 scenarii résolument contrastés et avec des ambitions bien
identifiées : Un projet alimentaire à l'échelle du Grand Territoire avec l'ambition de
conserver au maximum les structures en place (bassins extérieurs et intérieurs) pour la
création d'une ferme aquaponique // Un projet culturel et sportif à l'échelle de la ville
sous la forme d'une grande esplanade équipée de salles de concerts , d'escalade et de
workout réutilisant les structures en place, et la création d'un nouveau DOJO // Enfin un
projet plus induit et intégré avec la création du « Quartier du Plongeoir » entremêlant
logements collectifs (RDC commerciaux et services ) et surfaces commerciales centrées autour
d'une grande esplanade dominée par le plongeoir, élément caractérisant devenu remarquable.
COMMUNE DE LOUDEAC (22)
ETUDE DE PROGRAMMATION GENERALE ET DECLINAISON OPERATIONNELLE
2018 – 2019 / MO : Mairie de Loudéac
ELEMENTS DE MISSION
_ Etablir un diagnostic transversal concluant sur les freins à l'attractivité/croissance et
définition des enjeux
_ Référentiel foncier précis à l'échelle ville concluant sur les disponibilités et
potentialités (hiérarchisées) foncières
_ Etude de programmation (type plan guide), définition de plusieurs scenarii échelle
ville
_ Définition de programmes sectoriels, chiffrage et montage des projets avec les
partenaires
_ Ateliers de concertation
_ Montage du dossier « Coeur de ville »
ENJEUX & PARTICULARITES
Les élus de Loudéac sont confrontés à un ralentissement de la dynamique démographique et à
différents questionnements concernant le repositionnement du parc social et la valorisation
de différentes friches, dont celle de la gare qui scinde la ville. Les enjeux sont à la
hauteur des attentes : Restructurer la ville et renforcer son attractivité en agissant à la
fois sur l'hyper centre, les friches et les quartiers sociaux en reconversion.
Cette étude a été menée en étroite collaboration avec les habitants, qu'il s'agisse des
réunions de concertation à l'échelle ville ou quartier. Le mot d'ordre de la reconversion de
Loudéac a été de recoudre et solidariser les fonctions de la ville ; la friche de la gare -
point noir et central de la ville - s'est transformé en un parc qui va pouvoir recevoir
graduellement des habitations qualifiées par leur rapport à la nature, les friches du centre
ont été réinvesties vers des fonctions multiples, la programmation commerciale a été
réinventée et boostée par de nouveaux outils smart, les quartiers périphériques ont été
reconvertis et tissent des liens nouveaux et étroits avec le centre-ville... Nous avons
imaginé ici avec les habitants et en collaboration avec les bailleurs de nouvelles façons
d'habiter, en réponse aux attentes d'une population très attachée à leur quartier et au
cadre de vie.
La commune prend une direction nouvelle et très claire basée sur un programme de travaux sur
10 ans visant la reconquête et la dynamisation du centre-ville.
MAYOTTE
ETUDE DE PROGRAMMATION _ OPERATIONS D'INTERET NATIONAL
2018 – 2020 / MO : Etablissement Public Foncier d'Aménagement de Mayotte
ELEMENTS DE MISSION
_ Programmation urbaine et habitat de deux secteurs OIN composant la moitié Nord de l'île de
Mayotte (Lot n°1 : Centre-Ouest et Lot n°5 : Mamoudzou Koungou)
_ Diagnostic de l'ensemble des quartiers insalubres et (co)propriétés dégra¬dées
_ Programmation et montage des grands projets urbains de structuration de Mayotte : plus de
50 équipements nouveaux, un dispositif nouveau de trans¬port par câble, de nouveaux ports et
de nouvelles navettes maritimes, une stratégie énergétique renouvelée,...
_ Définition et montage des projets sectoriels d'habitat et définition de la stratégie
insulaire (horizon 2050) de résorption de l'habitat informel.
ENJEUX & PARTICULARITES
Ces OIN à Mayotte prennent une ampleur exceptionnelle ; entre la programmation travaux de «
rattrapage » du niveau d'équipements et celle d'accompagnement de la très forte croissance
démographique de Mayotte, nous avons défini un plan d'intervention sur 30 ans pour un budget
de plusieurs centaines de millions. Les problématiques sont multiples ; le volume et la
complexité (topographie, état sanitaire, carence des réseaux) des secteurs d'habitat
insalubre, la saturation des réseaux de communication, la carence en surface agricole et en
ressources énergétiques, le manque de moyens (financiers et ingénierie) des collectivités
pour affronter la croissance de la population et celle - accrue - de l'habitat informel sur
une île très contrainte par les risques naturels.
Nous avons programmé la restructuration intégrale de la moitié Nord de l'île de Mayotte en
définissant un programme général et transversal d'intervention ainsi que des opérations
prioritaires de renouvellement sur les secteurs insalubres non couverts par les NPNRU.
COMMUNE DE NEUVILLE DE POITOU (86)
AMO & ETUDE DE PROGRAMMATION / REQUALIFICATION _ COEUR DE VILLE
2017 – 2019 / MO : Mairie de Neuville de Poitou
ELEMENTS DE MISSION
_ Etablir un diagnostic transversal général et diagnostic technique sur 7 sites
_ Etude de programmation générale visant la redynamisation du centre-ville, définition de
plusieurs scenarii échelles ville et sur 7 secteurs prioritaires d'intervention
_ Définition de programmes sectoriels (études pré-opérationnelles), chiffrage et montage des
projets avec les partenaires
_ Ateliers de concertation
_ Mission AMO : Lancement des marchés, négociation avec les propriétaires et promoteurs,
suivi des projets
ENJEUX & PARTICULARITES
Les élus de Neuville se sont interrogés sur les outils de maîtrise du développement urbain
et ont souhaité réaliser une étude de programmation sur 7 sites dont 4 friches
industrielles, 2 dents creuses et un secteur en extension. Notre approche a été de réaliser
une étude urbaine à l'échelle du bourg - élargie sur le volet économique à l'EPCI. Nous
avons travaillé sur une structure et organisation générale (nouvelle trame verte) qui
mettait en relation chacun de ces secteurs, et permettait également de les reconnecter au
centre bourg commerçant et aux écoles. Ces secteurs ont été fusionnés en 3 « super sites »
pour favoriser l'insertion des projets dans une logique globale plus cohérente en termes
d'échelle d'intervention et d'identité de quartier.
3 nouveaux quartiers se sont ainsi structurés :
_ un quartier de ville très dense, calqué sur la morphologie du centre mais faisant la part
belle à la lumière et à la qualité de vie par des vues systématiques depuis les logements
sur un espace naturalisé
_ un quartier intergénérationnel qui offrait une très large palette de logements et de modes
d'habiter, en intégrant un foyer pour personnes âgées et des espaces de rencontre sous la
forme d'un bâtiment dédié et d'un parc central
_ le 3ème secteur - fusionné avec un écoquartier nouveau - a pris la vocation d'un quartier
contemporain très libre dans sa forme et mixte dans ses fonctions, avec la possibilité
d'implanter des commerces et services en RDC. Ce nouveau quartier est structuré autour d'un
grand jardin partagé, très sollicité par les habitants. Les typologies de logements
programmées répondaient de près aux besoins diagnostiqués et aux carences de la commune.
A ce jour deux projets implantés sur des friches commerciales sont en cours de réalisation
avec des promoteurs. Notre mission d'AMO a été de faire évoluer en les rationnalisant les
projets tout en maintenant auprès des opérateurs un cadre étroit garantissant une approche
qualitative et complémentaire en termes d'offres de logements et intégrée. Cette étude a
initié un véritable retournement de l'image de la commune par des interventions rapides et
qualitatives sur les friches.
COMMUNE DE ST HILAIRE DE RIEZ (85)
ETUDE URBAINE ET DE FAISABILITE EN VUE DE LA REALISATION DE PROGRAMMES MIXTES DANS LE QUARTIER DE SION SUR L'OCEAN & AMO
2017 – 2018 / MO : Mairie de St Hilaire de Riez
ELEMENTS DE MISSION
_ Diagnostic urbain transversal et diagnostic physique du secteur de projet
_ Etude de définition de 3 scenarii programmatiques à l'échelle du secteur de projet
_ Chiffrage et montage des différents projets, phasage des opérations
_ AMO sur la consultation d'opérateurs/concepteurs
ENJEUX & PARTICULARITES
La commune a souhaité maîtriser et qualifier le village de Sion par la réalisation d'une
étude de programmation sur une friche située à quelques centaines de mètres du front de mer.
La difficulté a été de viabiliser financièrement l'opération grevée d'un prix de foncier
élevé et de contraintes foncières fortes (nombre de propriétaires, couts de dépollution et
démolition). Différentes simulations de densité et d'offres de logements ont été testées
financièrement grâce à des bilans aménageurs et promoteurs. Nous avons abouti à une approche
très interventionniste en nous réappropriant ce qui fait la richesse et le particularisme du
tissu urbain vendéen par la proposition d'une opération très dense et en continuité avec le
tissu pavillonnaire. Le quartier nouveau est un village piétonnier qui fait la part belle à
la mixité architecturale et sociale. La conception du quartier est très corrélée avec
l'environnement urbain et naturel ; nous avons imaginé ce quartier nouveau dans son rapport
à l'océan en retravaillant sur l'espace public et sur la mobilité à l'échelle de Sion.
COMMUNE DE VIGNOC (35)
ETUDE DE PROGRAMMATION URBAINE & ARCHITECTURALE SUR LES EQUIPEMENTS MUNICIPAUX
2018 – 2019 / MO : Mairie de Vignoc

ELEMENTS DE MISSION
_ Diagnostic urbain transversal et diagnostic des équipements publics
_ Etude de définition d'un plan guide échelle commune et de 3 scenarii programmatiques à
l'échelle du pôle d'équipements
_ Chiffrage et montage des différents projets, phasage des opérations et détermination des
subventions mobilisables
_ Ateliers de concertation
_ Définition des fiches opérations
ENJEUX & PARTICULARITES
Les équipements publics de la commune de Vignoc - commune attractive de la région Rennaise –
sont rassemblés sur un secteur distendu et déstructuré. Ces équipements sont dans des états
de vétusté différenciés, certains (Ecole primaire, Réfectoire, maison des associations,..)
sont en attente d'intervention urgente. Notre mission a été – en considérant les capacités
budgétaires municipales et les aides financières mobilisables – de dessiner le projet d'un
véritable pôle d'équipement animé, structuré autour d'un espace public central qui deviendra
la principale place du village, propice aux rencontres et évènements divers.
COMMUNE DE JOUE LES TOURS (37)
ETUDE DE PROGRAMMATION URBAINE ET SOCIALE (NPNRU) POUR LE DESENCLAVEMENT ET LA MISE EN VALEUR DES QUARTIERS DE LA VEILLE RABIERE ET DES GEMEAUX
2017 – 2018 / MO : Mairie de Joué Les Tours
ELEMENTS DE MISSION
_ Diagnostic urbain transversal à l'échelle communale, Diagnostic habitat échelle EPCI,
Diagnostic socio-économique et technique des logements sociaux
_ Etude de programmation à l'échelle du secteur ANRU et dans ses relations à la ville.
Définition de scenarii programmatiques, stratégie d'intervention sur les logements sociaux
(habitat et peuplement)
_ Plan d'aménagement espaces publics et bâtiments. Chiffrage des travaux et montage
opérationnel selon méthode de l'ANRU
_ Assistance à a réalisation du dossier de conventionnement, réalisation des FAT
_ Ateliers de concertation
ENJEUX & PARTICULARITES
Une étude réalisée dans le cadre de l'ANRU sur le dernier quartier social de Joué-les-Tours
n'ayant bénéficié des précédents programmes de rénovation urbaine. Les enjeux de
désenclavement et de revalorisation du secteur de la Vieille Rabière et les faibles
possibilités d'adapter des logements sociaux existants plaident pour une opération de
restructuration urbaine combinant des interventions sur les espaces publics et le
renouvellement partiel des bâtiments.
Nous avons programmé la réalisation d'un généreux corridor (ouverture à vocation
fonctionnelle, sociale et écologique) rendu possible par la démolition de deux barres de
logement. Ce corridor est un vaste parc inter-générationnel sur lequel nous projetons une
nouvelle maison de quartier dans laquelle s'installeront les associations en place et les
activités nouvelles ; un espace fédérateur de liens pour les habitants du quartier et ceux
de la ville entière. Cette programmation d'équipements est accompagnée d'interventions très
différenciées sur le patrimoine du bailleur : Ouverture des halls, mise en accessibilité des
logements (création d'ascenseurs,..),... la totalité du parc va être réhabilitée.
COMMUNE DE FLEURY LES AUBRAIS (45)
ETUDE DE PROGRAMMATION URBAINE, SOCIALE ET ECONOMIQUE DU QUARTIER LAMBALLE
2019 – 2020 / MO : Mairie de Fleury les Aubrais
ELEMENTS DE MISSION
_ Diagnostic urbain transversal à l'échelle communale, Diagnostic habitat échelle EPCI,
Diagnostic socio-économique et technique des logements sociaux. Référentiel foncier.
_ Etude de programmation à l'échelle du quartier centre. Définition de scenarii
programmatiques, stratégie d'intervention sur les logements sociaux (habitat et
peuplement)
_ Plan d'aménagement espaces publics et bâtiments. Chiffrage des travaux et montage
opérationnel selon méthode de l'ANRU
_ Définition des travaux sur le centre commercial existant, définition programmatique et
montage
_ Ateliers de concertation
ENJEUX & PARTICULARITES
Des enjeux multiples sur ce quartier à connotation sociale identifié comme le centre-ville
de Fleury.
Le quartier a été restructuré autour d'un centre commercial – très fédérateur – réhabilité
et étendue avec notamment la création de logements nouveaux dans les étages. Ce nouveau
complexe avec son espace public intégralement requalifié constitue la nouvelle polarité,
évidente et attractive, à l'échelle de la ville.
Nous avons défini des programmes d'intervention différenciés avec les bailleurs sociaux vers
une reconversion complète de l'image du centre. Ce patrimoine a été soit réhabilité,
démolit/reconstruit ou densifié de manière cohérente selon le niveau d'enjeux technique
et/ou social. Ces opérations ont été définies pour chaque typologie immobilière, dont
logements sociaux et copropriétés.
Nous avons également interrogé la commune sur la stratégie de
gestion/utilisation/valorisation des équipements. Une nouvelle maison de quartier (intégrant
une crèche) a été installée à l'interface logements sociaux /parc de Fleury pour renforcer
l'attractivité du lieu et fédérer encore par la mixité d'usage et d'usagers. Ont été
implantées une nouvelle salle polyvalente, un dojo et un gymnase de manière à composer un
véritable pôle sportif très accessible, affiché et fonctionnel, nouveau levier
d'attractivité de la ville.
Parallèlement et dans l'optique de valoriser le foncier et les friches disponibles, deux
opérations de logements neufs ont été programmées pour renforcer encore la mixité sociale et
participer à l'équilibrage du bilan financier global.
COMMUNES D'ANGOULÊME ET LA COURONNE (16)
ETUDE DE PROGRAMMATION URBAINE ET SOCIALE (NPNRU) QUARTIERS DE BEL AIR GRAND FONT A ANGOULEME ET L'ETANG DES MOINES A LA COURONNE
2017 – 2019 / MO : Grand Angoulême – Quartiers d'Intérêt Régional
ELEMENTS DE MISSION
_ Diagnostic urbain transversal et habitat échelle EPCI, Diagnostic socio-économique des
quartiers, Diagnostic technique des logements sociaux, Diagnostic mobilité, Référentiel
foncier
_ Etude de programmation à l'échelle des secteurs ANRU et dans leurs relations aux centres
urbains. Définition de scenarii programmatiques, stratégie d'intervention sur les logements
sociaux (habitat et peuplement) et sur l'offre d'équipements
_ Plan d'aménagement espaces publics et bâtiments. Chiffrage des travaux et montage
opérationnel selon méthode de l'ANRU
_ Assistance à la réalisation du dossier de conventionnement, réalisation des FAT
_ Ateliers de concertation
ENJEUX & PARTICULARITES
Deux quartiers d'Intérêt Régional au titre du NPNRU mais des problématiques bien distinctes.
Le quartier Bel Air Grand Font d'Angoulême est très stigmatisé, il profite très peu de
l'influence de la gare toute proche du fait de son enclavement lié à la topographie. Depuis
les axes périphériques le quartier montre ce qu'il a de pire, pourtant il est animé par un
tissu urbain composite et par une forte activité sociale et culturelle. Un véritable
quartier animé portant de gros potentiels urbains (d'ouverture et d'image), de mixité
(Proximité de la gare et du centre-ville) et architecturaux (des tours structurantes
dominant de beaux pavillons...un paysage atypique). La complexité du dossier est liée aux
coûts induits par les voies nouvelles à créer dans la pente et par la vétusté des quatre
écoles du quartier ; quelles priorités opérer – sur la base de l'enveloppe allouée par
l'ANRU – pour créer un effet levier à la hauteur des attentes des habitants et des enjeux du
quartier et de la collectivité ?
Sur le quartier de l'Etang des Moines à La Couronne, les interventions sur les espaces
publics vont permettre de créer les coutures urbaines et sociales indispensables à la
solidarisation du quartier à la ville. Un programme mesuré de réhabilitation va permettre
d'opérer d'ores et déjà un retournement stratégique de l'image de ce qui était un quartier
social.
COMMUNE DE LANESTER (56)
ETUDE DE PROGRAMMATION URBAINE ET SOCIALE (NPNRU) QUARTIER KERFREHOUR / LA CHATAIGNERAIE
2017 – 2019 / MO : Mairie de Lanester – Quartier d'Intérêt Régional
ELEMENTS DE MISSION
_ Diagnostic urbain transversal à l'échelle communale, Diagnostic habitat échelle EPCI,
Diagnostic socio-économique et technique des logements sociaux
_ Etude de programmation à l'échelle du secteur ANRU et dans ses relations à la ville.
Définition de scenarii programmatiques, stratégie d'intervention sur les logements sociaux
(habitat et peuplement)
_ Plan d'aménagement espaces publics et bâtiments. Chiffrage des travaux et montage
opérationnel selon méthode de l'ANRU
_ Assistance à a réalisation du dossier de conventionnement, réalisation des FAT
_ Ateliers de concertation
ENJEUX & PARTICULARITES
Insulaire et animé. C'est ce qui pourrait caractériser ce quartier lui-même partagé en deux
entités ; la Châtaigneraie (secteur au patrimoine réhabilité et aux loyers plus élevés) et
Kerfréhour – quartier en attente d'interventions, prioritairement sur le parc de logement
très vétuste. Car le quartier vie bien, même en vase clos. Co-existent de nombreuses
associations, une « Ferme » en centre social et de beaux jardins partagés qualifiant le
quartier qui prend parfois l'allure d'un parc.
Le projet se construit dans la consolidation de cette dynamique sociale par des
interventions lourdes sur le parc de logement et la création d'un espace de rencontre entre
les deux quartiers > un lien pour rompre l'effet d'insularité et faire connaitre ce que le
quartier a de meilleurs ; les jardins qui ont capacité à s'agrandir, l'animation du quartier
en général. Un projet très ambitieux avec de nombreuses démolitions / reconstructions
portées des bailleurs motivés et des habitants très présents et motivés pour faire partie
intégrante du processus de mutation.
MATOURY (GUYANE)
ETUDE DE PROGRAMMATION URBAINE ET SOCIALE (NPNRU) QUARTIERS KOMBO KOMOU TERCA A MATOURY
2018 – 2020 / MO : Mairie de Matoury
ELEMENTS DE MISSION
_ Diagnostic urbain transversal à l'échelle communale, Diagnostic habitat échelle EPCI,
Diagnostic socio-économique et technique des logements sociaux
_ Définition de scénarii programmatiques de restructuration / solidarisation du secteur
intégrant la stratégie de résorption de l'habitat insalubre et de relogement. Définition et
montage des projets sectoriels d'habitat
_ Définition pré-opérationnelle par fiche action par opération
_ Plan d'aménagement espaces publics et bâtiments. Chiffrage des travaux et montage
opérationnel selon méthode de l'ANRU
_ Assistance à la réalisation du dossier de conventionnement, réalisation des FAT
ENJEUX & PARTICULARITES
Un NPNRU complexe de par le volume d'habitat informel à insalubre et la fragilité écologique
des milieux. Les quartiers Kombo, Komou et Terca se touchent mais présentent des
caractéristiques socio-culturelles bien différentes. Au contact immédiat de ces zones
d'habitat informel (pour la plupart sur le foncier de particuliers) les zones inondables
interdisent toute construction.
Le projet se structure autour d'un espace public unique – vaste mail animé et multimodal –
qui crée naturellement le lien physique et social entre les quartiers et les communes, et la
possibilité pour tous d'aller travailler en bus ou en vélo.
Sur la base de données socio-économiques très précises nous avons élaboré une programmation
habitat pointue selon les niveaux d'insalubrité (irrémédiable à remédiable) de chaque foyer.
Un nouveau quartier mixte a vu le jour, intégré et communiquant avec les quartiers
réhabilités grâce à des effets de gradations d'intervention fines et la conception d'un mail
sportif qui deviendra un lieu d'échanges et de manifestations. De nombreux équipements
nouveaux ont vu le jour tel qu'un lycée, un centre culturel, des écoles, en structuration
des tissus et animation de chaque quartier.
Un projet de renouvellement très ambitieux pour ces 3 quartiers informels qui vont muter
progressivement vers un quartier unique nouveau drainé par une artère commerciale
naturalisée. Un quartier de Matoury très aéré et en rapport étroit avec son environnement
naturel, où l'habitat insalubre sera résorbé à l'horizon 2027.
COMMUNE DE BARBATRE – ILE DE NOIRMOUTIER (85)
ETUDE DE FAISABILITE D'UN QUARTIER RESILIENT
2017 – 2018 / MO : DDTM de Vendée
ELEMENTS DE MISSION
_ Diagnostic du site
_ Expertise croisée des PPRL et PLU >Définition des points de limite et de blocage à une
constructibilité qualifiée
_ Référentiel foncier
_ Réalisation de scenarii d'aménagement suivant les niveaux de risque et de valorisation
foncière
_ Estimations financières, Montage des projets et identification des freins et leviers
_ Analyse critique du PPRL et animation de conférences de sensibilisation sur la notion de
Résilience et de constructibilité en zone inondable
ENJEUX & PARTICULARITES
La DDTM de Vendée – et les élus du littoral Vendéen – se confrontent à une problématique
d'actualité ; les limites à une constructibilité qualifiée dans le cadre des nouveaux
PPR(L). Les nouvelles conditions de constructibilité des PPRL croisées avec le cadre
règlementaire constituent un frein inquiétant au maintien des populations des communes
littorales et – autre effet collatéral – à la qualité des constructions situées en zone
bleu. Les rares zones ouvertes à l'urbanisation sont situées en zone bleu du PPRL,
assujetties à une côte de référence déterminant une côte minimale de niveau de plancher. Les
premières réponses architecturales à ce cadre sont à déplorer pour des communes très
sensibles au niveau du paysage et de l'attractivité touristique.
Il a été choisi une parcelle d'enjeu sur la commune de Barbâtre pour tester les limites du
PPRL et concevoir un projet d'habitat pleinement résilient et sécurisé au titre du PPR.
L'objectif pour la DDTM était de définir sur ce site témoin une approche type pouvant être
déclinée sur l'ensemble des communes littorales affectées de PPRL. Différents scenarii ont
donc été proposés, tous résilients et selon des techniques constructives ou des modèles
urbains bien différents. Ces 3 modèles présentent la qualité de réagir positivement à l'aléa
inondation et d'être réplicable sur d'autres sites. Cette étude a permis de déterminer les
freins du PPRL sur les thèmes d'un urbanisme résilient (cohérent) et d'une architecture
qualifiée. Nous avons pu identifier des points d'amélioration du PPR pour faciliter la
conception de quartiers résilients - intégrés au tissus vendéen et faisables - qualifiés au
niveau architectural et présentant l'ensemble des mesures sécuritaires attendues au titre du
PPRL ; Le moyen pour les communes littorales de maintenir leur capacité d'accueil de la
population sans que cela soit associé à une détérioration des qualités constructives et de
l'attractivité.
COMMUNE DE MILLAU (12)
MISSION D'AMO POUR LA DEFINITION D'UNE VILLE RESILENTE
2020 / MO : Banque des Territoires et ville de Millau
ELEMENTS DE MISSION
_ Définition du programme et toutes pièces du DCE pour le lancement d'une étude de
programmation pour un Millau résilient
_ Notice de sensibilisation sur les thèmes Résilience & Smart.
_ Conseil (technique et juridique) durant le lancement du marché et le choix du
titulaire
_ Analyse des offres et négociation, notice d'évaluation
_ Suivi des études (Notes d'évaluation et tableau de synthèse)
_ Assistance au choix des acteurs / Opérateurs de projet
ENJEUX & PARTICULARITES
Dans le cadre du marché à bon de commande avec la Banque des Territoires (Programme d'Action
Coeur de ville) la ville de Millau souhaite définir les termes et conditions de son
attractivité, mutation et développement sous l'angle de la résilience. La mission d'AMO
consiste à écrire les termes de l'étude de programmation posant les fondements de Millau la
résiliente.
Cette étude est motivée par la sensibilité du centre de Millau au risque inondation et suite
à différentes réflexions quant à la valorisation des zones inondables. Il d'agit également –
parallèlement à la définition du projet de ville - d'interroger et challenger le PPRI en
cours dans sa capacité à favoriser une dynamique de projet résilient, intégré et faisable.
Cette étude présentait aussi des enjeux d'opérationnalité différenciés sur deux sites,
introduisant des notions de montage et de faisabilité technique pour un débouché direct sur
des études de maîtrise d'oeuvre.
Les facteurs clés du Millau résilient sont la valorisation des zones inondables, la qualité
de résilience globale et à long terme, l'intégration des enjeux énergétiques (Réseau de
chaleur) et d'imperméabilisation des sols.
COMMUNE DE SAINT HILAIRE DE RIEZ (85)
ETUDE DE PROGRAMMATION ET AMO_ PLACE GASTON PATEAU
2018 – 2019 / MO : Mairie de St Hilaire de Riez


ELEMENTS DE MISSION
_ Diagnostic transversal du site ; Diagnostic technique, social, mobilité,...
_ Etude de programmation, définition de plusieurs scenarii
_ Chiffrage, Montage et planning d'intervention (études et travaux)
_ Lancement des marchés de maîtrise d'oeuvre dont rédaction des cahiers des charges et
assistance administrative et juridique, conseils financiers stratégiques
_ Coordination et suivi (administratif, technique et financier) des études et des travaux
ENJEUX & PARTICULARITES
Dans le cadre de notre étude sur le coeur de Sion pour le compte de l'EPF de Vendée, nos
réflexions nous ont porté sur le rapport à l'océan et donc sur l'aménagement de la Place
Gaston Pateau ouverte sur l'océan. La mairie a donc lancé une seconde étude sur laquelle
nous avons eu la chance de travailler. Une étude dont le périmètre n'a fait que s'élargir
tout au long du processus de conception. Nous avons écrit la programmation urbaine et
architecturale comme une histoire racontant le rapport du village de Sion à l'océan au
travers de ce site stratégique. Nos études nous ont amené à effectuer des propositions
d‘animations et évènementielles car cet espace ouvert / poreux / de pratiques doit s'animer
en tout temps ; s'animer par le concept urbain et la qualité architecturale mais aussi par
la mise en scène commerciale qualifiant l'espace public, par la notion de déambulation et
une approche beaucoup plus interactive de la pratique de l'espace public, de la plage et
l'océan.
COMMUNE DE VILLEGAILHENC (11)
ETUDE DE RECOMPOSITION URBAINE POST-INONDATION
2018 – 2019 / MO : Mairie de Villegailhenc

ELEMENTS DE MISSION
_ Diagnostic transversal communal. Diagnostic habitat et marché de l'immobilier à l'échelle
EPCI
_ Etude de programmation, définition d'un scénario de recomposition - résilient – du centre
bourg
_ Plans sectoriels d'aménagement
_ Concertation échelle commune, ateliers de conception échelle quartier, entretiens
individuels
_ Chiffrage, montage et planning d'intervention (études et travaux)
_ Lancement des marchés de maîtrise d'oeuvre dont rédaction des cahiers des charges et
assistance administrative et juridique, conseils financiers stratégiques
_ Elaboration du dossier Démarche bourg centre
ENJEUX & PARTICULARITES
Suite à la crue de 2018, le coeur de village historique et patrimonial de Villegailhenc est
dévasté. Un drame humain, social et financier pour une commune reconnue pour sa qualité de
vivre et la qualité patrimoniale de son coeur de bourg. Impactée par la Loi Barnier, la
commune a souhaité initier au plus vite la reconstruction et apporter des réponses aux
nombreux habitants délogés, et pour certains traumatisés par la violence de la crue.
Notre travail prioritaire a été d'écouter les habitants individuellement et d'effectuer un
état des lieux de chaque habitation pour déterminer – parallèlement aux études
structurelles, au cadre de la loi Barnier et du PPRI – le champs des possibles en termes de
réhabilitation en considérant à chaque fois la maison dans son ilot (considérant que les
maisons du bourg se portent entre elles). Ont été établis de premiers scenarii de
recomposition du centre bourg, un village nouveau construit autour de l'eau et animé par
l'eau. Il s'agissait de surmonter le plus rapidement cette catastrophe, de présenter un
avenir aux habitants attachés à leur commune. C'était aussi l'occasion d'imaginer un village
renouvelé et plus en rapport avec les besoins contemporains en termes d'usage, de services,
de loisirs,...bref transformer une catastrophe en opportunité.
Sur un travail intensif de 7 mois nous avons co-conçus grâce à de multiples ateliers la
commune nouvelle autour de l'eau, en préservant au maximum son patrimoine et ses habitants.
La commune a été détruite par sa rivière ; c'est cette même rivière qui demain va générer
une attractivité nouvelle et une relance des dynamiques commerciales et démographiques par
la création d'un parc habité en plein coeur de village, une place publique naturalisée
animée par des fonctions nouvelles.
COMMUNE D'ARGENTEUIL (95)
MISSION DE MAITRISE D'OEUVRE _ AMENAGEMENT DES ABORDS DE LA BASILIQUE ET CREATION D'UN SQUARE
2017 – 2018 / MO : Mairie d'Argenteuil
Montant de travaux : 1.7 M€ HT
ELEMENTS DE MISSION
Mission complète Loi MOP + ESQ
ENJEUX & PARTICULARITES
La basilique d'Argenteuil est un site remarquable à plusieurs égards : pour la richesse
patrimoniale de l'édifice et pour la qualité de vie qui règne ici dans ce quartier
d'Argenteuil qualifié de ses maisons anciennes en alignement et d'une véritable vie de
quartier, la chapelle étant entourée de commerces de proximité.
Nous avons travaillé prioritairement sur la mise en scène de la basilique avec une écriture
très sobre au sol, en reprenant les matériaux clairs de la basilique (calcaire). Nous avons
ensuite cherché à animer encore le site : par la lumière avec une étude spécifique qui
aboutira à des jeux de couleurs variables sur les façades suivant les évènements / pa la
végétation avec la création d'un mail arboré latéralement à la basilique pour offrir une
zone d'ombre et de paix / par la création d'un square au pied de la Chapelle équipé de jeux
d'eaux, de multiples assises et plancher bois pour s'allonger, discuter, jouer, se
rencontrer, se reposer,...consolider encore l'attractivité de la basilique. Basilique
magnifiée par son parvis en calcaire, avec son mail arboré, et de l'autre côté par un square
contemporain où le bois est omniprésent et où la basilique s'impose et attire.
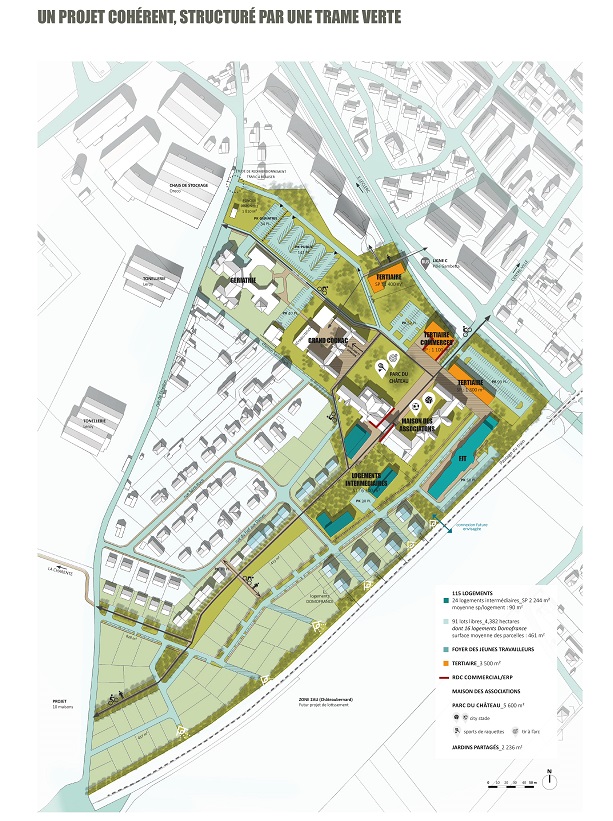
COMMUNE DE BEAUPREAU EN MAUGES (49)
MOE _ CONCEPTION DE LA RUE DES MAUGES
2019 – 2020 / MO : Mairie de Beaupréau
Montant de travaux : 800 000 € HT
ELEMENTS DE MISSION :
Mission complète Loi MOP + ESQ + Permis
d'aménager (cadre AVAP)
ENJEUX & PARTICULARITES
La mairie de Beaupréau souhaite réinvestir sa rue principale – la rue des mauges – pour
améliorer la qualité générale de pratique piétonne, valoriser la ville depuis cet accès
principal et renouveler ses réseaux gravitaires. La rue très circulée en plein périmètre AVP
est bordée de maisons en alignement. L'enjeu a été de régler l'ensemble des contraintes
fonctionnelles tout en caractérisant cet axe central, névralgique et patrimonial. A cette
occasion nous avons en phase esquisse proposé un projet à plus long terme, avec la création
d'un bâtiment nouveau mettant en relation la rue avec une place située en contre haut ; un
projet ambitieux qui pourrait permettre de créer à Beaupreau un site évident de
rassemblement, la place publique de la ville animée d'un bâtiment exceptionnel faisant le
lien entre ville haute et ville basse.
COMMUNE DE CHALLANS (85)
MISSIONS DE MAITRISE D'OEUVRE ET AMO _ ZAC DE LA ROMAZIERE
2016 – 2018 / MO : Communauté de Communes du Pays de Challans
Montant de travaux : 2.2 M€ HT
ELEMENTS DE MISSION
_ Diagnostic transversal communal
_ Etude de programmation, définition de scénarii pour la ZAC
_ Estimation des travaux et montage selon les différents projets en cours
_ Dossiers de création et réalisation de ZAC
_ Mission complète Loi MOP
_ Mission AMO – Architecte coordinateur des études et travaux
ENJEUX & PARTICULARITES
Cette ZAC située aux portes de Challans porte de grands enjeux commerciaux et d'équipements.
Située stratégiquement, elle va recevoir le complexe aquatique intercommunal ainsi que de
gros projets commerciaux. L'enjeu est la qualité biologique du projet ; nous avons restitué
les écosystèmes en place avec de multiples zones humides dont la plus grande est un parc
accessible, l'artère principale est largement arborée et l'éclairage s'oriente vers la piste
cyclable plutôt que vers la route, les cahiers des charges des parcelles prévoient
l'implantation obligatoire d'écosystèmes forestiers,... une ZAC orientée nature qui, de
fait, vient améliorer la qualité biologique du site tout en générant une véritable
attractivité, qualité de travail et de pratiques.
COMMUNE DE MONDEVERT (35)
ETUDE DE PROGRAMMATION ECHELLE COMMUNE ET CONCEPTION (MOE) DE LA NOUVELLE PLACE
2018 – 2020 / MO : Mairie de Mondevert
Montant des travaux : 300 000 € HT

ELEMENTS DE MISSION
_ Diagnostic transversal communal
_ Etude de programmation, définition d'un scénario de recomposition échelle commune
_ Plans sectoriels d'aménagement
_ Ateliers de concertation
_ Mission complète Loi MOP pour la nouvelle place suite étude de programmation
ENJEUX & PARTICULARITES
A Mondevert les notions de COTECH ou COPIL n'existent pas, il n'y a que des réunions
publiques car la posture du maire est clairement annoncée ; le projet sera réalisé par et
pour les habitants. L'étude s'opère à différentes échelles ; celle de la commune pour
imaginer son développement qualifié à long terme et participer ainsi à l'appel à projet de
la Région. Les habitants sont aussi en attente d'une décision quant à l'installation d'un
terrain de sport. Nous avons donc avancé sur les deux volets, en réfléchissant globalement
sur la manière de créer de la stimulation en aménageant une place publique unique, dans
l'étirement de l'étang et intégrant un terrain sportif. L'opérationnalité a été poussée
jusqu'en études de maîtrise d'oeuvre offrant ainsi à la commune sa place publique animée de
nombreuses activités, équipée d'un ponton dominant et faisant le lien avec l'étang. Une
place très ouverte et animée.
COMMUNE DE NANTES (44)
MISSION DE MAITRISE D'OEUVRE _ CONCEPTION DE LA MAISON DE L'INNOVATION
Montant de travaux : 3.5M€ HT
Lot paysage : 300 000 € HT
ELEMENTS DE MISSION
Mission complète Loi MOP + ESQ
ENJEUX & PARTICULARITES
Les principales spécificités de ce bâtiment sont les qualités de confort de travail et
environnementales (dont énergétique) poussées au maxima. L'objet est de regrouper
plusieurs services du groupe La Poste et de disposer d'un immeuble Innovant et Connecté /
Responsable, certifié et économe / Flexible et divisible / favorisant l'innovation sous
toutes ses formes (énergétique, écologique, technique, digitale, organisationnelle)
5 grands thèmes d'innovation ont été développés : La production et la gestion de
l'énergie, la réduction de l'impact carbone, le confort, la santé et le bien-être, la prise
en compte de la biodiv, de la biophilie et une réflexion sur le biomimétisme,
l'intégration du numérique et digital. Objectifs environnementaux : E3C2 avec possibilité E4
(bâtiment
producteur) en APS / HQE bâtiment durable niv. Excellent / BREEAM 2016 niveau Outstanding /
Well niveau Gold
COMMUNE DE PONT SCORFF (56)
MISSION DE MAITRISE D'OEUVRE _ CONCEPTION DU QUARTIER « LES JARDINS DE LA CHAPELLE »
2018 – 2019 / MO : Nexity foncier
Montant de travaux : 900 000 € HT
ELEMENTS DE MISSION :
Mission complète Loi MOP + ESQ + Permis d'aménager
ENJEUX & PARTICULARITES
Les enjeux sont à la hauteur de la qualité du site ; un terrain entouré d'alignements de
chênes centenaires en plein bocage breton, à 150 m. de la Chapelle Saint-Aubin qui domine le
site (ZPPAUP). Nous avons donc travaillé sur la mise en scène de ces qualités pour qualifier
ce quartier nouveau très ancré dans son environnement naturel.
Le projet s'articule autour d'un axe central piétonnier et jardiné donnant droit sur le
clocher. Le principe est très simple : Prolonger les jardins de la chapelle jusqu'au coeur
de
notre quartier nouveau.
Le caractère rural et patrimonial manifesté par le corps de ferme limitrophe doit raisonner
au sein du quartier nouveau. Nous allons privilégier la densité sous la forme de maisons
regroupées, et affirmer le caractère champêtre par l'implantation de haies bocagères
plantées préalablement aux constructions. Les chênes seront protégés ; ils seront sortis des
surfaces parcellaires cessibles pour assurer leur préservation et le bon entretien des
arbres dans le temps. Ces arbres patrimoniaux sur leur talus assurent de fait la bonne
intégration du quartier nouveau mais sont aussi un véritable faire valoir en termes de cadre
de vie et de qualité écologique.
COMMUNES DE ROUBAIX ET TOURCOING (59)
ETUDES URBAINES ET DE MAITRISE D'OEUVRE _ ZAC DE L'UNION
2015 – 2018/ MO : Métropole Européenne de Lille
Montant de travaux : 18 M€ HT

_low.jpg)
ELEMENTS DE MISSION
_ Etudes de programmation urbaine
_ Etudes de maîtrise d'oeuvre loi MOP complète
_ Permis d'aménager
_ AMO Architecte-urbaniste
ENJEUX & PARTICULARITES
ECO-QUARTIER de l'Union : Du quartier industriel au pôle d'excellence à Haute Qualité de
Vie.
Cette étude vise à requalifier en profondeur un quartier industriel vers un milieu habité et
animé par de multiples espaces publics et de pratique. Un quartier grand comme une ville,
très caractérisé et identifié par son architecture vernaculaire industrielle.
La constructibilité de l'Union a augmenté. Cette densification s'est faite d'abord sur les
logements, qui représentaient 85 000 m², soit 1500 logements et 26% de la SHON. La surface
des programmes tertiaires a également fortement augmenté par un quasi doublement. Les
surfaces d'activités industrielles sont restées stables, mais du fait de la densification
des autres programmes, elles ne représentent plus que 20% de la SHON totale. Les COS à la
parcelle varient de 0,6 à 2,5, et sont majoritairement proches de 1, équivalent à la densité
du centre des villes de Tourcoing, Roubaix, Wattrelos.
A l'Union, nous avons proposé d'aménager des salons de ville ou salons de verdure,
appropriables et même customizables par les habitants. Elargissements de la rue ou
aménagement de délaissés, ces jardins de poche agrémentent la qualité de vie et permettent
la rencontre des habitants. En même temps, ils créent et préservent la nature en ville.
Les études de programmation et de planification urbaine ont débouché sur les études de
maîtrise d'oeuvre phasées selon des secteurs stratégiques. L'AVP global a été déroulé en
PRO/DCE sectoriels définissant rigoureusement chacune des orientations sur les thèmes du
déplacement, de la qualité écologique et de la définition des lieux de rencontre.